3412 St. Catherines Street Vancouver, BC
3 Bedroom Townhouse for Sale
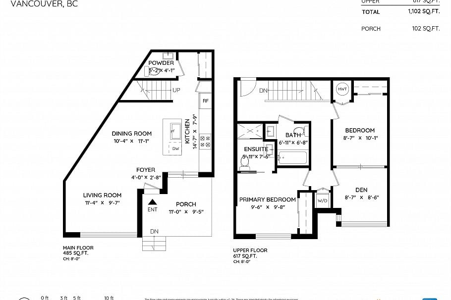
This gorgeous townhome offers a private walk-up entry, 2-beds + den, 3-baths, & 1,102 sqft of sophisticated interior space. Main level boasts a thoughtfully designed open-concept layout w/ wide-plank flooring throughout; powder rm; kitchen w/ luxury appliances, including gas range, excellent cabinet & counter space, island w/ breakfast bar, & sliding door access to the private covered front patio that offers year-round space for al-fresco entertaining. Floor-to-ceiling windows in the living rm offer W-exposure & welcome in abundant natural light. Upper level features primary bed w/ ensuite; secondary bed & bath; den/potential 3rd bed; &, conveniently located laundry. Includes U/G parking, storage locker, & balance of new home warranty.
Provided by: Macdonald RealtyAdditional Information
Property Location
Property Features
Washer Dryer Dishwasher Refrigerator Stove Microwave

