3673 E 48th Avenue Vancouver, BC
4 Bedroom Half Duplex for Sale
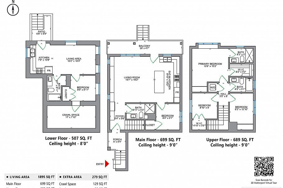
Rear Duplex in Killarney. Well built by reputable builder. Three bedrooms up. Open design on main floor with Den. Beautiful light coloured hardwood floors. Kitchen has lots of cabinet featuring a large island. Top quality appliances. Opens on to full width deck flowing into extra large back yard. Downstairs has a completely separate legal one bedroom suite with it's own laundry. Single garage with an additional parking spot large enough for a RV next to it. Great location not far from Killarney Community Center/High School. A short drive to Metrotown. Walk to Burnaby's Central Park with it's Pitch and put.
Provided by: Multiple Realty Ltd.Additional Information
Property Location
Property Features
Washer Dryer Dishwasher Refrigerator Stove Microwave

