321 2520 Guelph Street Vancouver, BC
2 Bedroom Apartment/Condo for Sale
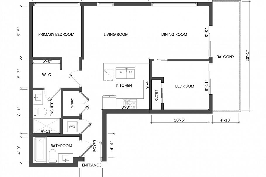
Welcome to Habitat by Porte Developments, an urban oasis in the heart of vibrant Mount Pleasant. This south-west corner 2-bed, 2-bath home by award-winning Formosis Architecture offers high 8'8" ceilings and a bright, modern design. Features include laminate flooring, matte cabinetry, quartz countertops, under-cabinet LED lighting, matte black fixtures, and integrated Fulgor Milano appliances. Enjoy a private balcony off the living room and second bedroom. The primary bedroom includes a spa-like ensuite and the spacious second bedroom is perfect for your little ones or a home office. Residents enjoy a rooftop lounge with BBQs, dining areas, seating, fire pits, and a communal lounge/office space. Steps to transit, shopping, and top Mount Pleasant restaurants. O/H: March 1, 1 - 3PM
Provided by: eXp RealtyAdditional Information
Property Location
Property Features
Washer Dryer Dishwasher Refrigerator Stove

