5092 Clarendon Street Vancouver, BC
3 Bedroom Half Duplex for Sale
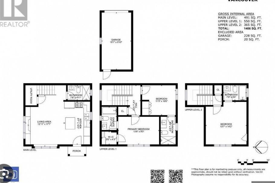
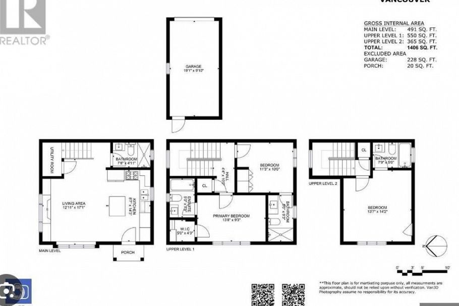
Beautifully designed 1/2 duplex in the sought-after Collingwood area of Vancouver! Built in 2023 and showing like new, this spacious home offers 3 bedrooms and 4 full baths with high-quality finishes throughout. Enjoy engineered hardwood flooring, A/C, HRV, and radiant floor heating for year-round comfort. The main floor features an open-concept layout with 9-ft ceilings, creating a bright and airy living space perfect for entertaining. Ideally located, this home is within walking distance to both elementary and high schools, parks, transit, and shopping. A perfect blend of modern and family-friendly convenience - move-in ready and waiting for youl School: Cunningham Elementary & Gladstone Secondary.
Provided by: Royal Pacific Realty Corp.Additional Information
Property Location
Property Features
Washer Dryer Dishwasher Refrigerator Stove Microwave Oven

