4826 Duchess Street Vancouver, BC
6 Bedroom Townhouse for Sale
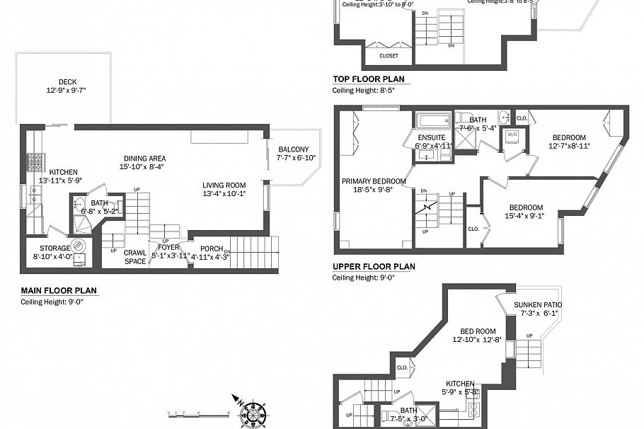
Welcome to Norquay Premiere, a limited collection of contemporary townhomes designed for East Van. This 5BR + 4.5 bath home incl. a lock-off suite - ideal as mortgage helper or multi-generational living. Thoughtfully laid-out w/ excellent flow, incl. 3 bedrooms on one level and 3 outdoor spaces, highlighted by a sunny top-floor balcony. The main living area features built-in media unit and modern kitchen with Fisher Paykel appliances, quartz counters & shaker cabinets. Equipped w/ heat pump for heat/AC, dedicated HWT & full-sz laundry. Smart security, secure bike storage & 1 parking included. Centrally located near parks, schools & Kingsway amenities; 9-min walk to 29th Ave SkyTrain & 20 mins to DT or YVR. Catchments: J. Norquay Elem. & Windermere Sec.
Provided by: Macdonald RealtyAdditional Information
Property Location
Property Features
Washer Dryer Dishwasher Refrigerator Stove Microwave

