853 E 19th Avenue Vancouver, BC
2 Bedroom Apartment/Condo for Sale
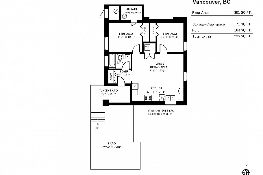
Welcome home to this 2-bedroom, 1-bathroom garden suite designed by Architrix that seamlessly blends convenient living with modern design. This functional floor plan features spacious living and dining, a linear Fisher & Paykel kitchen with quartz countertops, sleek cabinetry, and ample storage, 2 well-appointed bedrooms, and in-suite laundry. Heat pump provides year round comfort for heating and cooling. Ideally located, you are in a quiet pocket that is just steps away from Kingsway for all eateries, shops, cafes, amenities, and transit. Open House: Saturday April 18th from 2:30-4pm
Provided by: Stilhavn Real Estate ServicesAdditional Information
Property Location
Property Features
Washer Dryer Dishwasher Refrigerator Stove

