2 435 E 47th Avenue Vancouver, BC
3 Bedroom Half Duplex for Sale
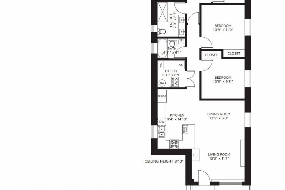
Come discover this unique 1-storey garden flat home offering bright and spacious 3 beds and 2 baths across 1,350+ sf. Beautifully designed for those seeking single-level living with no stairs! Features include built-in storage, a full appliances package, functional kitchen and dining space and a primary bedroom that expands to a spacious walk-in closet. One EV-ready designated parking stall off the rear lane and your own private fenced yard, all with the benefit of no added strata fees. Located in the Fraser–Sunset neighbourhood, walk to shops and restaurants, a great school district and family-friendly parks. Blend of design + flexibility in one of Vancouver's most walkable neighbourhoods!
Provided by: Angell, Hasman & Associates Realty Ltd.Additional Information
Property Location
Property Features
Washer Dryer Dishwasher Refrigerator Stove Microwave

