2 727 E 31st Avenue Vancouver, BC
4 Bedroom Half Duplex for Sale
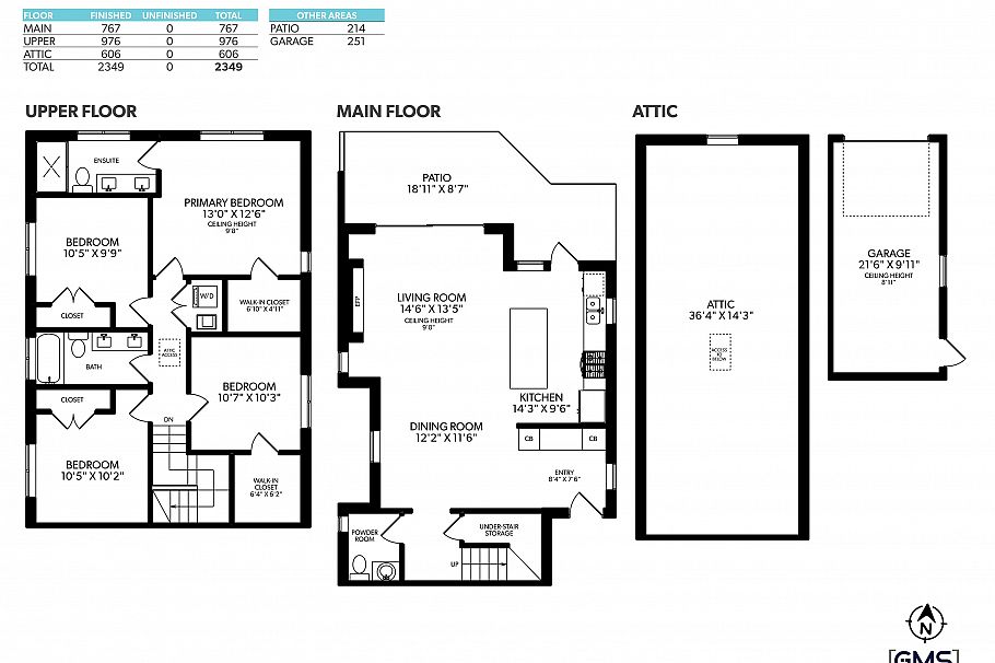
Asanti Homes presents this rare two-level 1,743 sq ft half-duplex with 4 bedrooms . Enter through the grand foyer into a spacious living & dining room featuring an oversized gas fireplace and direct access to a large private patio. The gourmet kitchen offers a large island perfect for entertaining and premium Fisher & Paykel appliances. Upstairs, four generous bedrooms accommodate large families or work-from-home needs. The primary bedroom includes a walk-in closet and private ensuite. Bonus: versatile 606 sq ft finished attic ideal for storage, playroom, office, or whatever your imagination desires. Expansive 33 x 146 ft lot with big back yards, detached garage with EV charging capability. Open House Sat/Sun April 11th/12th 2-4pm
Provided by: Macdonald RealtyAdditional Information
Property Location
Property Features
Washer Dryer Dishwasher Refrigerator Stove

