3679 St Catherines Street Vancouver, BC
3 Bedroom Half Duplex for Sale
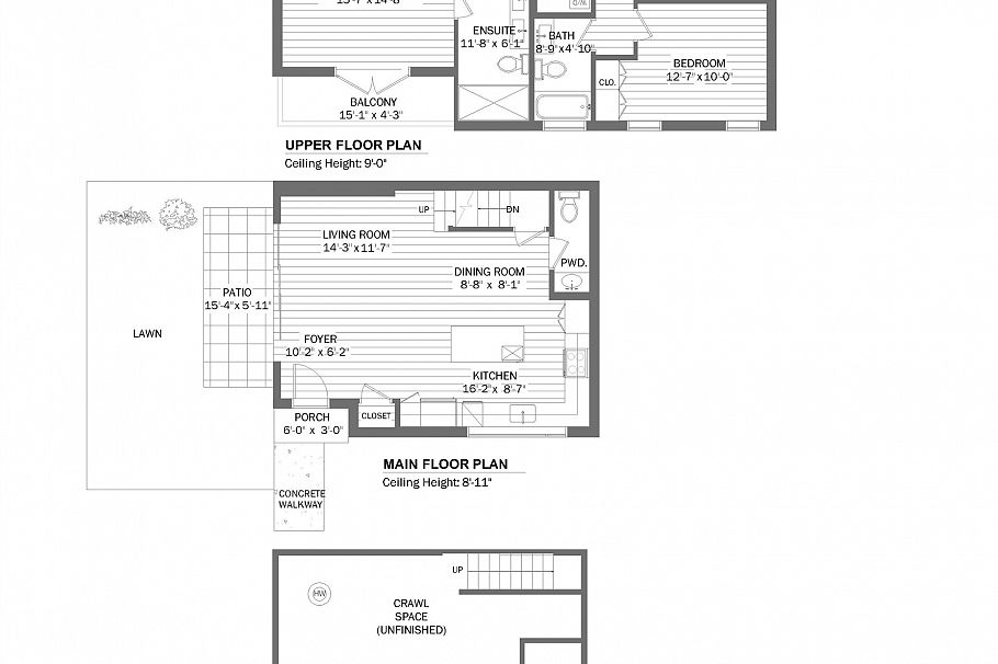
Defined by architectural clarity and thoughtful materiality, this design forward, two level half-duplex offers three generously proportioned bedrooms on the upper floor. Set on a quiet corner site in Fraserhood, the home is anchored by an open plan main level that extends seamlessly to a south facing patio and garden. The kitchen reflects a refined, bespoke approach with Shinnoki Ivory Oak cabinetry, integrated full-size appliances, a sculptural waterfall island, and extensive storage. Upstairs, the large primary suite features custom millwork, a restrained yet luxurious ensuite, and a private balcony. Secondary bedrooms are equally considered, each comfortably accommodating a queen-sized bed. Thoughtfully designed by EDG Homes and built with precision by GH Street Ltd. Shown by appointmt.
Provided by: Sutton Group-West Coast RealtyAdditional Information
Property Location
Property Features
Washer Dryer Dishwasher Refrigerator Stove

