719 E 27th Avenue Vancouver, BC
7 Bedroom Single Family Residence for Sale
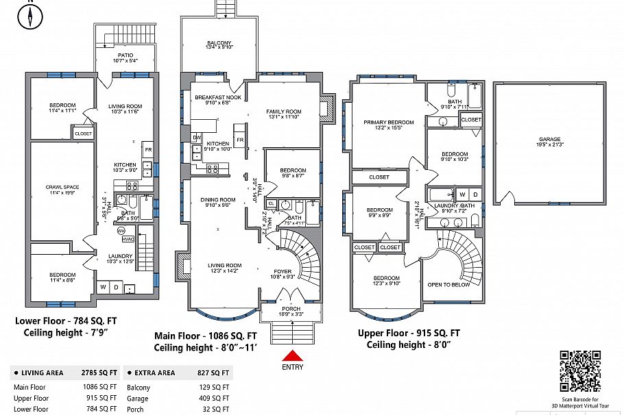
Fully renovated 3 level, 2,789 sqft Vancouver Special on a 33 x 132.3 lot with 7 beds, 4 baths, Updates include new flooring, bathrooms, kitchen with quartz countertops, vinyl windows, doors, blinds, lighting, appliances, and fresh paint. The upper level has 4 bedrooms, including a primary suite with ensuite, plus a bath with an XL countertop and side-by-side washer/dryer. The main level features open living/dining, a bedroom/office, and a full bath. Below is a 2-bed suite with a separate entry, full kitchen, and laundry. Radiant floor heating throughout the home. Located on a quiet, tree-lined street near schools, shopping & transit. Double garage, extra parking & a maintenance-free backyard with a deck & new aluminum awning. Open House April 25 Saturday 1:00-2:30pm
Provided by: Oakwyn Realty Ltd.Additional Information
Property Location
Property Features
Washer Dryer Dishwasher Refrigerator Stove

