#1 2244 E 11th Avenue Vancouver, BC
3 Bedroom Half Duplex for Sale
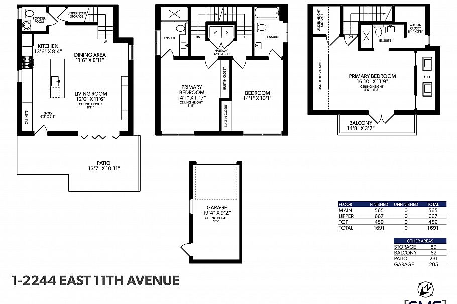
Experience elevated East Vancouver living in this brand-new front duplex, designed for the Trout Lake lifestyle & nestled in the heart of Grandview-Woodland. Built by Encore Collection w/a focus on quality & comfort, this 3-bedroom, 3.5-bathroom home offers 1,691 SQFT of thoughtfully crafted space. The open-concept main floor seamlessly connects to the outdoors through accordion-style doors that lead to a private patio—ideal for entertaining or everyday enjoyment. Premium features include high-end Fisher & Paykel appliances, built-in speakers, air conditioning, & modern designer finishes throughout. Live just moments from the vibrant energy of Commercial Drive, the serenity of Trout Lake, & the convenience of transit & top-rated schools.
Provided by: RE/MAX City RealtyAdditional Information
Property Location
Property Features
Washer Dryer Dishwasher Refrigerator Stove Microwave

