2 2091 E 20th Avenue Vancouver, BC
3 Bedroom Half Duplex for Sale
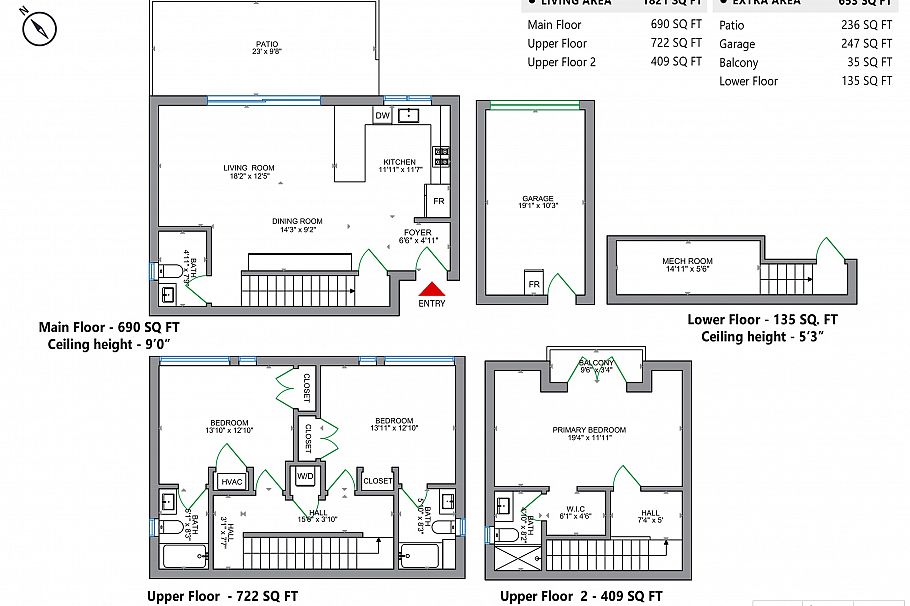
A proper duplex complete with a detached garage. Ideally located just steps to Trout Lake Park, Commercial Drive, SkyTrain, Lord Beaconsfield Elementary. This home offers 1,821 sq. ft. of thoughtfully designed living space with 3 bedrooms and 3.5 bathrooms, crafted with exceptional attention to detail. Featuring premium finishes including Forno Appliances, quartz countertops, Toto fixtures, and sleek tile flooring throughout. Enjoy year-round comfort with rarely available Radiant in-floor heating and high efficient air conditioning. The second level includes two large bedrooms, each with its own ensuite bathrooms, while the upper level is dedicated to a private master bedroom retreat with a walk-in ensuite and balcony. Private back yard.
Provided by: Sutton Group-West Coast RealtyAdditional Information
Property Location
Property Features
Washer Dryer Dishwasher Refrigerator Stove Microwave

