1752 E 4th Avenue Vancouver, BC
1 Bedroom Single Family Residence for Sale
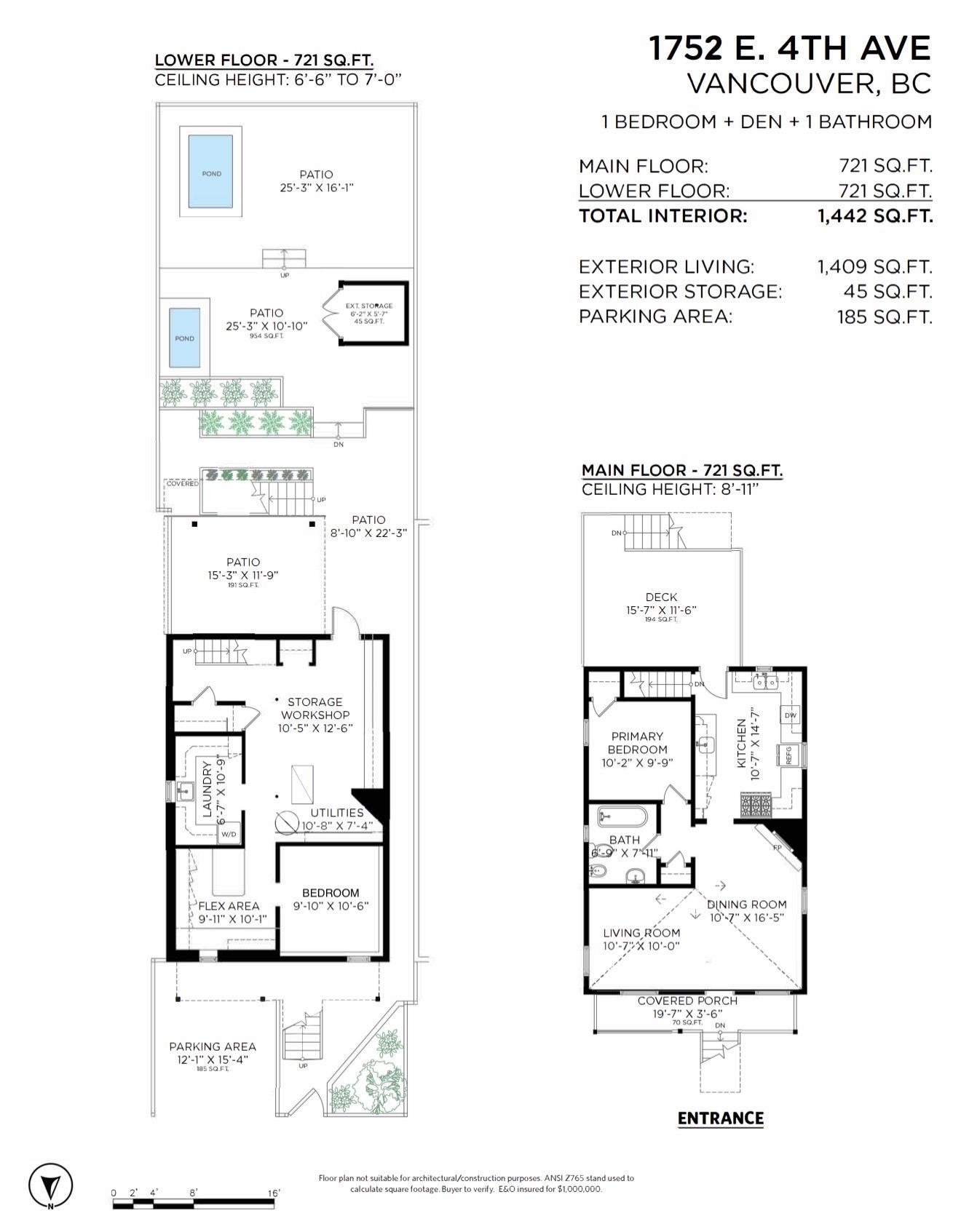
This cute renovated craftsman just off Commercial Drive, blends charm with thoughtful modern upgrades. Step through the fenced front yard to a charming front porch with decorative tin ceiling. The main floor features vaulted ceilings, a cozy wood-burning fireplace, 1 bedroom and bathroom complete with bidet & clawfoot tub. The chef’s kitchen offers a 6 burner gas range, generous counter workspace &abundant storage. Downstairs includes a full laundry room, office area, flexible 2nd bed/den, large workshop area & sep entry. Out back is a south facing deck off the kitchen, fenced backyard w/ patios & garden beds. Updated mechanicals throughout, including recent A/C. Located on an amazing no-thru street with BONUS off-street parking, but who needs a car in Vancouvers most walkable location.
Provided by: Stilhavn Real Estate ServicesAdditional Information
Property Location
Property Features
Washer Dryer Dishwasher Refrigerator Stove

