2486 Eton Street Vancouver, BC
5 Bedroom Single Family Residence for Sale
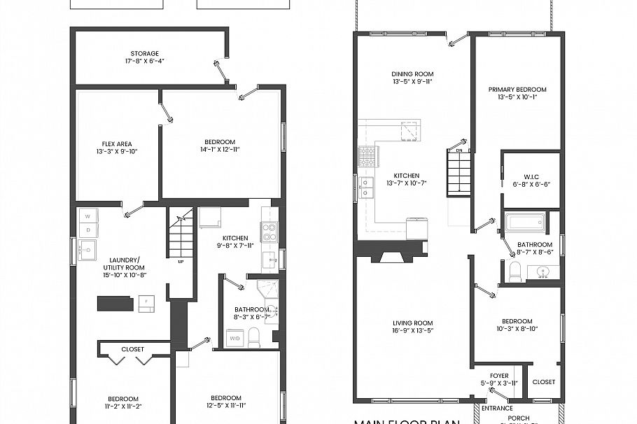
Discover a beautifully maintained 2,241 sq. ft. residence situated in the heart of one of East Vancouver's mos sought-after neighborhoods. This 4-bedroom home offers a spacious open-concept main floor with a bright kitchen and living area that flows seamlessly onto a large raised patio. The private, sun-drenched lot features a front-yard putting green and a dedicated basketball area. The finished lower level includes a large flex area, secondary kitchen, and separate entrance, providing excellent potential for a mortgage helper or multi-generational living. Experience the charm of the Eton Street area with this versatile property that combines functional indoor living with expansive outdoor spaces. OPEN HOUSE: SATURDAY & SUNDAY, APRIL 18/19, 2-4PM.
Provided by: Rennie & Associates Realty Ltd.Additional Information
Property Location
Property Features
Washer Dryer Dishwasher Refrigerator Stove

