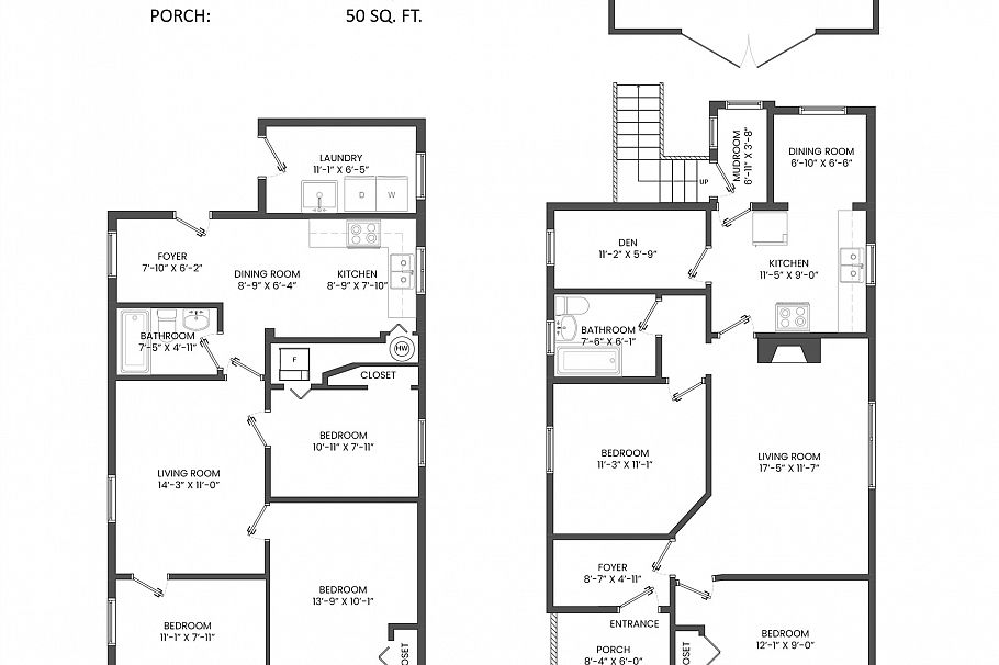
2541 Dundas Street Vancouver, BC
5 Bedroom Single Family Residence for Sale
Exceptional opportunity to acquire a prime 33’ x 122’ (4,026 SF) lot in Vancouver’s Hastings Sunrise neighbourhood. Ideal for builders and developers, the flat rectangular lot offers efficient site planning and excellent frontage along tree-lined Dundas Street. Located within an established residential community with convenient access to transit, parks, schools, and everyday amenities. Appealing ZONING ideal for single family homes, multiplex, and duplex developments. Bring your ideas.
Provided by: Rennie & Associates Realty Ltd.Additional Information
MLS® Number: R3089575
Year Built: 1913
Property Type: Residential Detached
Taxes: $7,526
By-Law Restrictions:
Maintenance Fees: $0
Maintenance Includes:

