1577 E 26th Avenue Vancouver, BC
7 Bedroom Single Family Residence for Sale
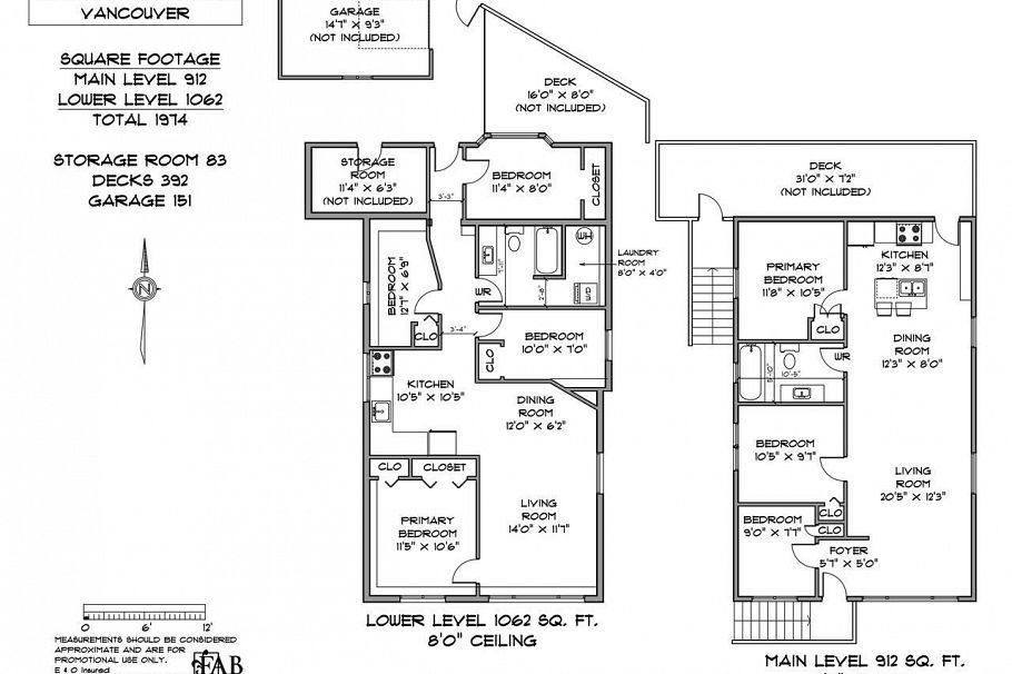
Court-ordered foreclosure sale in a prime East Vancouver location. This property features a main floor with three bedrooms and a four-piece bathroom, and a fully self-contained lower level with a private entrance, a four-bedroom suite currently operating as an Airbnb, a garage, and storage. Laser floor plans and a virtual tour are available. Ideally situated near Save-On Foods, the Vancouver Public Library, fitness centers, transit, and Kingcrest Park. Located within the sought-after catchment areas of Lord Selkirk Elementary and Gladstone High School. Not sure how the foreclosure process works? It’s straightforward—feel free to call me with any questions. Air B&B. 48 Hours' Notice for all showings. Thanks, Luke.
Provided by: RE/MAX LIFESTYLES REALTY
