1 4463 Walden Street Vancouver, BC
4 Bedroom Half Duplex for Sale
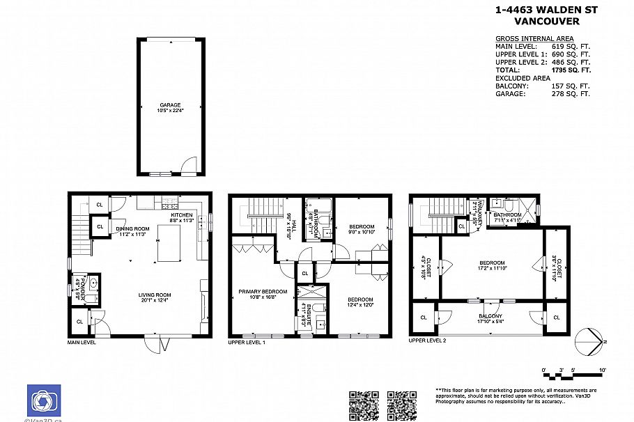
Step into this stunning brand new 1/2 sqft front unit half duplex located in the heart of Little Mountain/Main Street—one of Vancouver’s most coveted neighbourhoods! This 4 bed, 4 bath home is thoughtfully designed with high-quality finishing, custom millwork, and a bright, open layout. Enjoy seamless indoor-outdoor living with large glass doors that open to a sunny front patio, creating the perfect space for relaxing or entertaining. Includes a private 1-car garage and is just steps from shops, parks, top schools, and vibrant Main Street. Open house Sun May 24th from 2-4 PM!
Provided by: RE/MAX City RealtyAdditional Information
Property Location
Property Features
Washer Dryer Dishwasher Refrigerator Stove

