4438 Ontario Street Vancouver, BC
4 Bedroom Single Family Residence for Sale
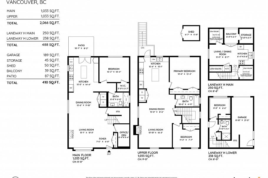
Nestled steps from vibrant Queen Elizabeth Park & Main Street, this charming house + laneway home blend functionality w/ elevated design. The main house features 3 bdrm, & 3 brthm, enveloped in abundant natural light, complemented by h/w & tile flooring & enhanced w/ contemporary features such as central AC & high ceilings. A generous sized bdrm on the main level that is private yet convenient to the open concept living, dining & kitchen. W/ laundry on each floor, the upper level offers another 2 large bdrm & open concept living w/ its own entrance. Add'l luxuries incl 2 gas fireplaces add a touch of grandeur. The LEGAL laneway suite offers excellent potential as a mortgage helper, ft. a private balcony, in-suite laundry, and full kitchen. A garage + carport provide parking & storage.
Provided by: FaithWilson Christies International Real EstateAdditional Information
Property Location
Property Features
Washer Dryer Dishwasher Refrigerator Stove Microwave

