4446 Quebec Street Vancouver, BC
6 Bedroom Single Family Residence for Sale
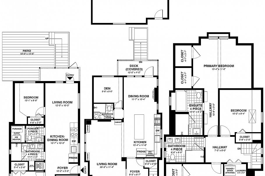
The prettiest home in Riley Park could now be yours. Renovated down to the studs, and dug down PLUS a massive extension off the back - entirely with permits in 2014! This home features an extra large living room, dining room, family room, and a chef‘s kitchen plus a bedroom and bathroom on the main floor and then head upstairs with three large bedrooms and two bathrooms (included in that a beautiful principal bedroom with vaulted ceilings and extra large en suite). Then downstairs, a totally separate fully legal three bedroom suite. Plus a beautiful, two car garage and the cherry on top is the charming front porch and picket fence. The best of old and new with fir floors and turn-of-the-century details, but gorgeous kitchen, two bathrooms and AC too!
Provided by: Macdonald RealtyAdditional Information
Property Location
Property Features
Washer Dryer Dishwasher Refrigerator Stove

