1 2915 E 5th Avenue Vancouver, BC
3 Bedroom Half Duplex for Sale
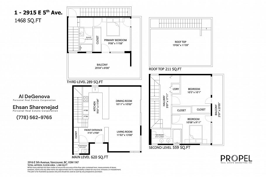
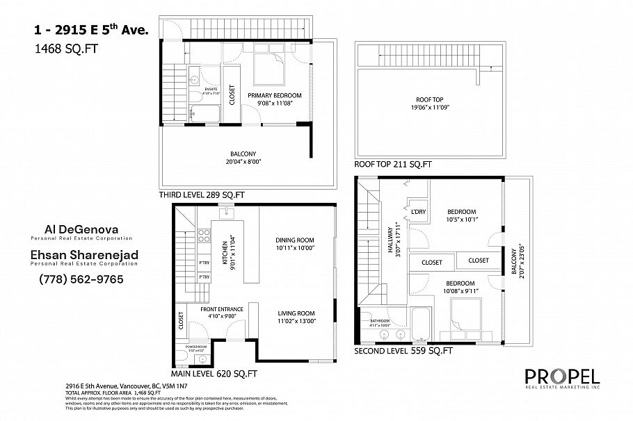
2915 E 5th Ave, Vancouver - developed by Vanway Properties, designed by Daria Sheina Studio. A meticulously crafted 3 bed, 2.5 bath back duplex offering Massive crawlspace storage & single car garage. Private rooftop patio with panoramic city & mountain views, balconies & ground-level outdoor space. Sunken living area with 10 ft ceilings creates separation while enhancing volume. Oversized triple-pane tilt & turn windows maximize light & frame views. Kitchen centred around a large island designed for cooking & baking. Custom millwork closets throughout. Minutes to Hwy 1 & a 12-min walk to Renfrew SkyTrain, near Broadway Tech Centre, Timber Bistro café, T&T Supermarket. Chief Maquinna Elementary & Van Technical Secondary, in the family-friendly Renfrew the area. Rear unit avail - R3101017
Provided by: Oakwyn Realty Ltd.Additional Information
Property Location
Property Features
Washer Dryer Dishwasher Refrigerator Stove Microwave

