3564 Sawmill Crescent Vancouver, BC
3 Bedroom Townhouse for Sale
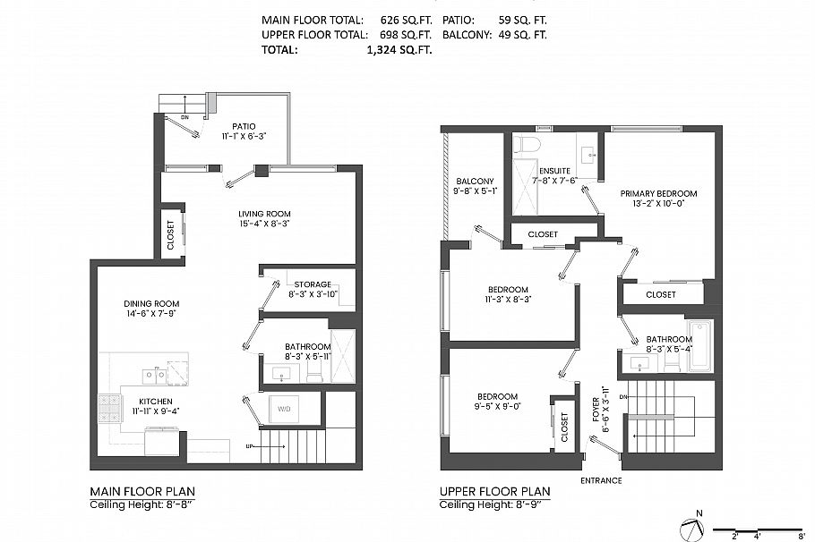
CORNER TOWNHOME at AVALON1. One of the most functional family homes... convenient ground floor entry (as well as second floor access to elevator), open concept main floor with large gourmet kitchen and bar, 3 large bedrooms upstairs including primary which accommodates a king sized bed, and 3 full bathrooms. The kitchen features full sized appliances including gas range, floor to ceiling cabinetry and stone counters, flowing on durable laminate flooring into the separated living and dining room. Appreciate upgraded window coverings, radiant in-floor heating, in-suite storage with organizers, 2 sunny patios and custom shelving. Includes 2 parking & 1 storage locker. All of this, steps to eateries, shopping, grocers, parks and riverfront. ***OPEN HOUSE: SAT, MARCH 28 & SUN, MARCH 29 2-4PM***
Provided by: Oakwyn Realty Ltd.
