316 8181 Chester Street Vancouver, BC
2 Bedroom Apartment/Condo for Sale
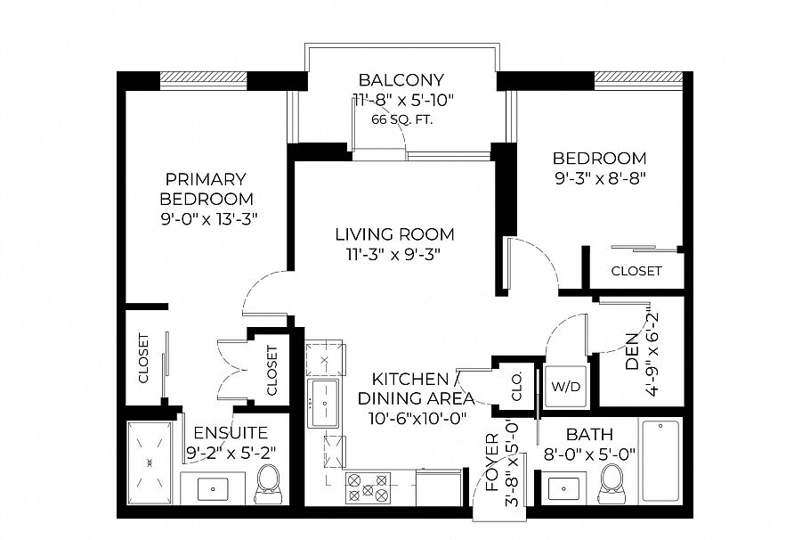
Welcome to Fraser Commons. This well-maintained 2 bedroom, 2 bathroom + den home offers a highly efficient open-concept layout with no wasted space, ideal for comfortable modern living. Bedrooms are thoughtfully located on opposite sides for added privacy, with a functional den perfect for a home office or extra storage. Enjoy heat pump with cooling and heating function, European Villeroy & Boch sinks and toilets, Liber Cucine cabinets, Bosch appliances, high quality finishes, and quiet inner-facing exposure with an open view to the garden. 1 Parking & 1 Locker. Good condition allowing for a smooth and flexible possession. Conveniently located close to transit, shopping, dining, daycare and everyday amenities—ideal for both end users and investors. Come view it today!
Provided by: RE/MAX WestcoastAdditional Information
Property Location
Property Features
Washer Dryer Dishwasher Refrigerator Stove

