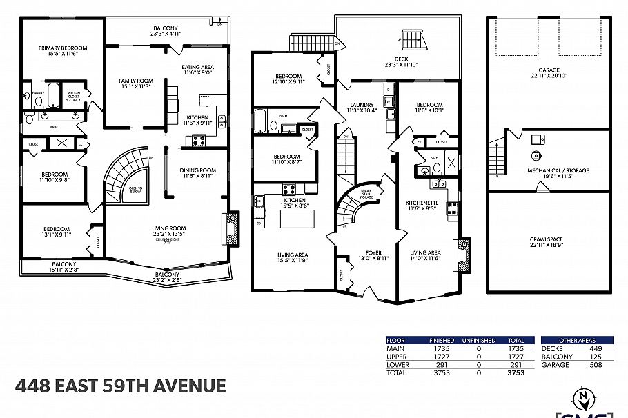
448 E 59th Avenue Vancouver, BC
7 Bedroom Single Family Residence for Sale
***FIRST TIME ON MARKET***ESTATE SALE***. 4000+ SQFT massive home on BIG LOT. 7 - 9 Bedrooms, 3 spacious living units perfect for multi-generational living or those looking to unlock the property’s dual secondary suite potential. This home is amazing with breathtaking VIEWS stretching out to Galiano Island, high ceiling with ample interior space and a thoughtful layout, this blank canvas home invites your imagination to bring your design ideas and create the perfect space tailored to your lifestyle. Located in a highly desirable South Vancouver neighbourhood and centrally located to airport, universities, amenities and transit. The market is moving, don't miss this great opportunity.
Provided by: Century 21 In Town RealtyAdditional Information
Property Location
Property Features
Washer Dryer Dishwasher Refrigerator Stove

