550 E 55th Avenue Vancouver, BC
6 Bedroom Single Family Residence for Sale
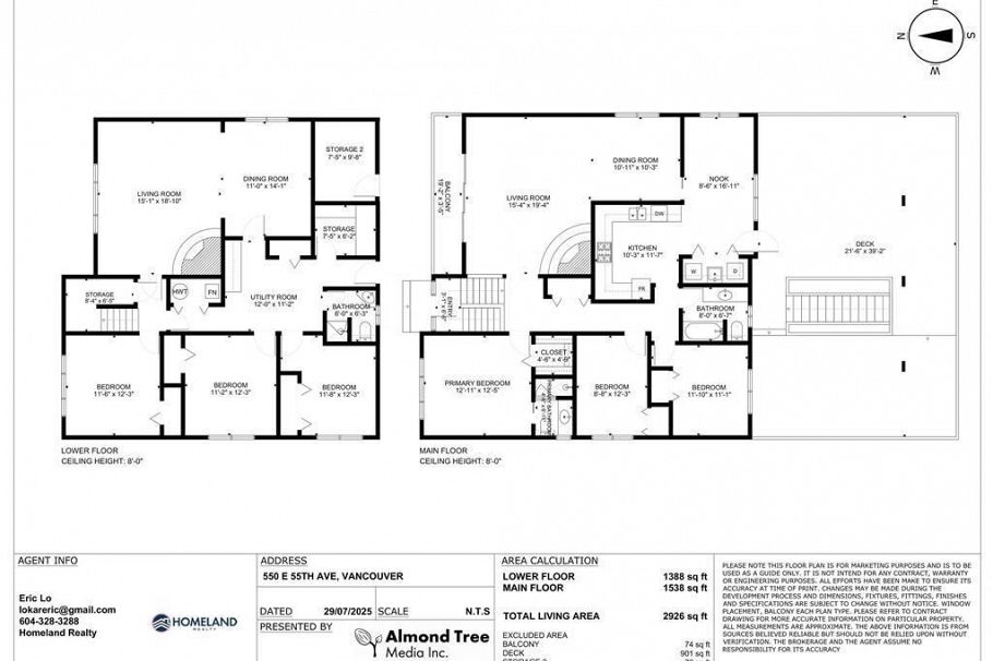
Solid 2926 sq. ft. European built home with 6 bedrooms (over 100 sq. ft. each) and 3 bathrooms located in South Vancouver on a 49.5 x 108 lot. Schools, public transportation, community center, grocery stores and restaurants are just minutes away. This spacious split level home features two unique and beautiful curved stone fireplaces up and down, with a vaulted ceiling made of gorgeous cedar in the upstairs living room. Large rec room downstairs is great for multi-use purposes. Large 901 sq. ft. South facing deck above the covered 3 cars carport, is perfect for leisure, entertaining and/or can be a gardener's delight. This home comes with ample storage space, both inside and out. Lots of potential - a must see. Video: https://youtu.be/9s3uyJ5itFo
Provided by: Homeland Realty
