801 221 Union Street Vancouver, BC
2 Bedroom Apartment/Condo for Sale
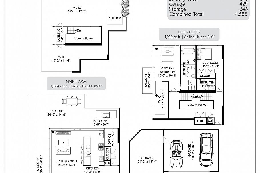
This is THE premier corner penthouse and was custom-designed for its original owner, offering an expansive three-level layout with 2,359 sqft of air-conditioned indoor living complemented by 1,551 sqft of private outdoor space. Step into the elegant marble foyer, where a floating concrete staircase ascends 2 stories to the stunning rooftop terrace. The main level boasts a spacious design, featuring a sunlit living and dining area, a gourmet chef's kitchen with integrated Wolf & Sub-Zero appliances, and a dedicated home office space. Upstairs, you'll find the luxurious private quarters, leading to the expansive rooftop oasis complete with a Jacuzzi and panoramic views. Additional feat: Control4 automation, concierge, two side/side parking + a private two-car garage, & 346 sqft storage room
Provided by: Engel & Volkers VancouverAdditional Information
Property Location
Property Features
Washer Dryer Dishwasher Refrigerator Microwave Oven Range Top Wine Cooler

