329 E Pender Street Vancouver, BC
6 Bedroom Single Family Residence for Sale
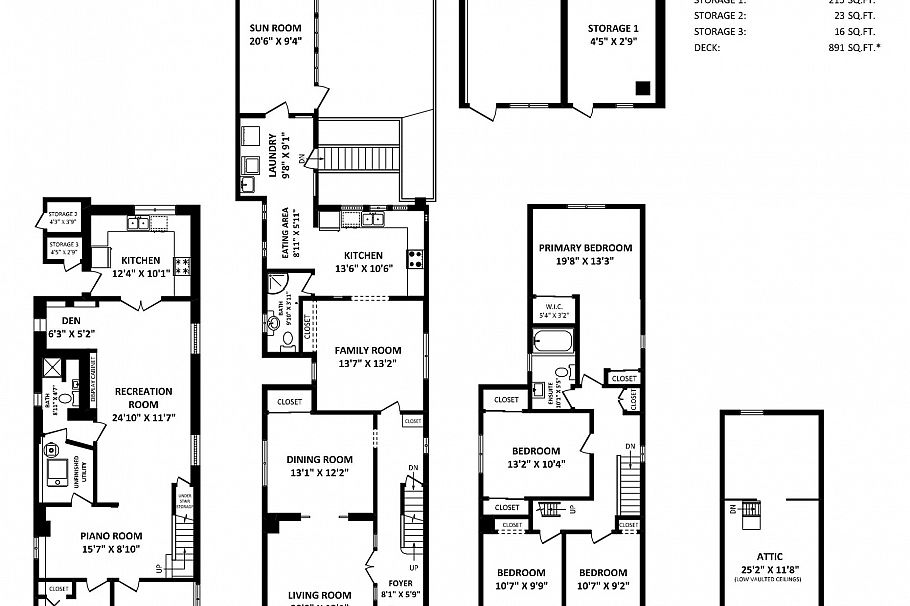
Welcome to this 1901 Character Charmer in the heart of Chinatown. This grand Strathcona beauty sits high above the street w/3619 sqft on 3 lev + a finished attic, offering 6 bedrms, 3 bathrms , 2 kitchens & a full bsmt. Upon entering into the foyer, be wowed w/the original wood banister, French doors opening into the spacious Lvgrm w/pocket doors separating the formal Dinrm. Fam Rm and Eating area on either side of Kitch, Laundry area, 211 sqft of Sunroom + 891sqft of sundeck for outdoor living! 2nd flr offers 4 Bdrms, w/primary bedrm having a sitting/office area. Attic finished w/a drop down ladder access for extra storage space w/windows at either end. 1090sqft high ceiling bsmt offers a large Recrm, 2nd kitch, den, library/music area outside of 2 bdrms. Triple garage w/storage rm.
Provided by: Oakwyn Realty Ltd.
