2301 125 E 14th Street North Vancouver, BC
2 Bedroom Apartment/Condo for Sale
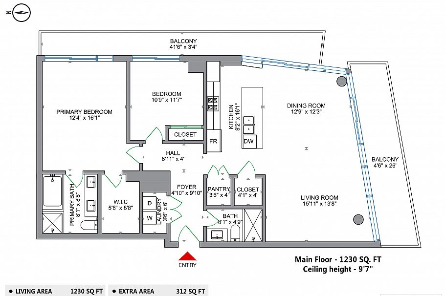
SOUTH-EAST CORNER SUB-PENTHOUSE WITH EXPANSIVE OUTDOOR LIVING! Bright & spacious 2 bed + 2 bath offering ~1,230 sq.ft. of well-designed living & over 300 sq.ft. of balcony space. Floor-to-ceiling windows fill the home with natural light & showcase city & partial water views. Open living & dining area ideal for entertaining, with excellent bedroom separation for privacy. Generous primary suite features walk-in closet & ensuite, while the second bedroom is perfect for guests, office, or flexible use. Functional kitchen with ample storage, plus in-suite laundry & multiple closets throughout. Enjoy resort-style amenities including concierge, outdoor pool, hot tub, gym, squash court & more. Includes parking & storage. Pets & rentals allowed. Steps to shops, dining, parks, Whole Foods & transit
Provided by: Royal Pacific Realty Corp.
