1911 Deep Cove Road North Vancouver, BC
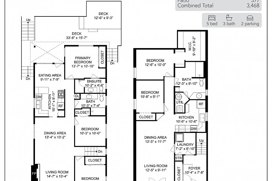
5 Bedroom Single Family Residence for Sale
This remarkable Deep Cove home has all your wants and needs! The heavy lifting has been done with a 2 year old roof, newer retaining walls and walkways, and updates throughout the house. The living room features a cozy gas fireplace and laminate floors and the primary bedroom features a modern 3 piece bathroom. All you need to do is move in to this Deep Cove home steps from the village and ocean. Five minutes to elementary and high school, day care and bus stop. Parking front and back . There is a great shed in the back for bikes and tools. Rented down for $1550.00 a month. Open Thursday April 23 10:15-12:00 and Sunday April 26, 2-4 parking in back for open house.
Provided by: Sutton Group-West Coast Realty
