1208 118 Carrie Cates Court Vancouver, BC
2 Bedroom Apartment/Condo for Sale
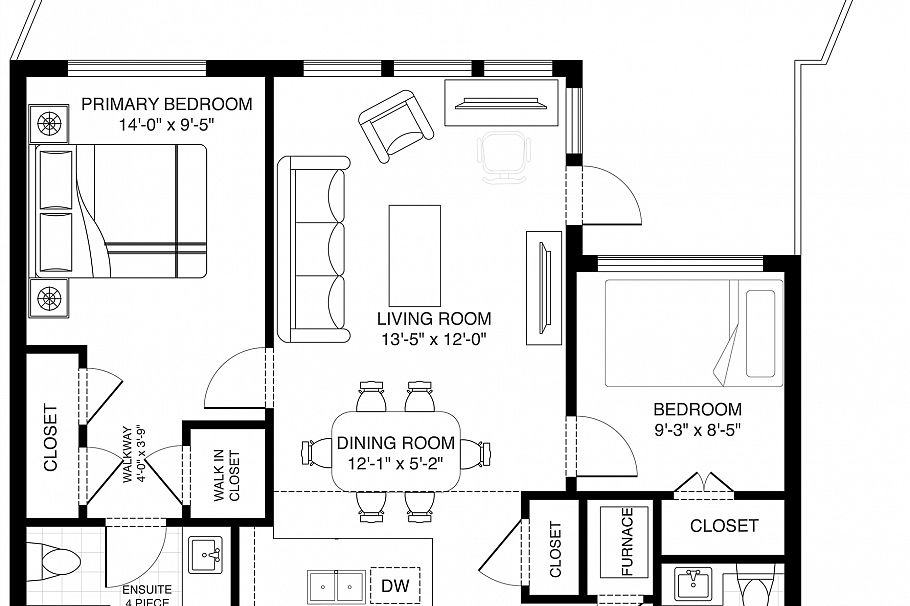
Promenade by Polygon. This 2 bedroom, 2 bathroom unit offers a bright open concept plan with gorgeous water and city views. Living room boasts high ceilings, floor to ceiling windows, and opens to the huge 365 square foot covered patio. Sleek kitchen has integrated appliances, quartz counters and a gas cooktop. Large primary bedroom walk in closet and spa like ensuite. Other premium features include A/C & wide plank flooring. Prime parking stall located on P1 and 2 large storage lockers. Fantastic amenities include a Concierge, fully equipped exercise center, games room, party room/lounge and patio. Dog friendly building allows 2 pets. Live in one of Lower Lonsdale's best concrete buildings, steps away from Lonsdale Quay, Seabus, the Shipyards, restaurants and shopping.
Provided by: RE/MAX Crest RealtyAdditional Information
Property Location
Property Features
Washer Dryer Dishwasher Refrigerator Stove

