JNW33 415 W Esplanade North Vancouver, BC
2 Bedroom Single Family Residence for Sale
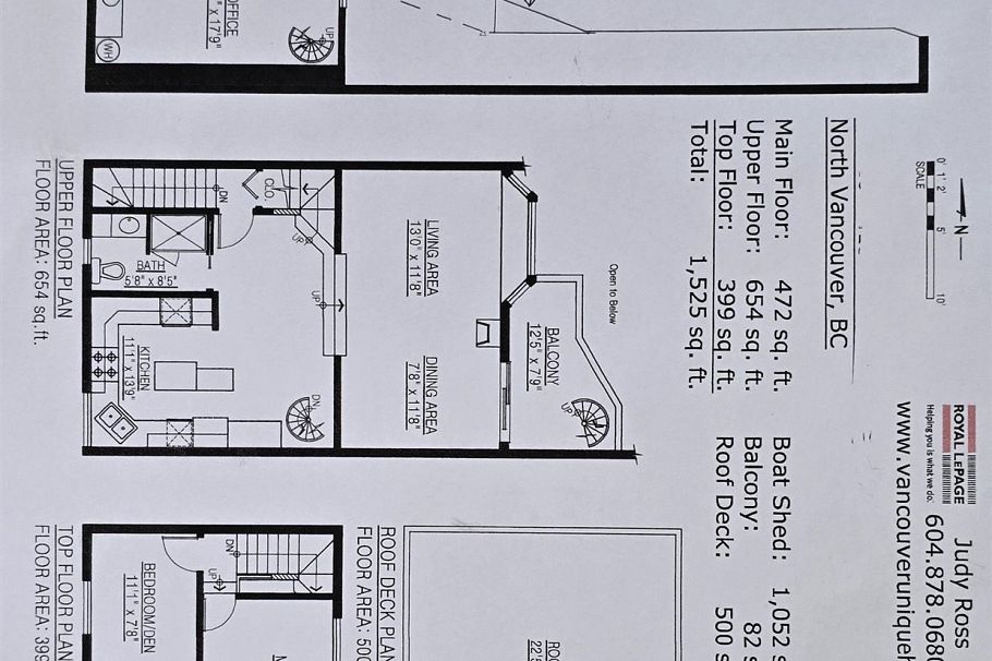
Unique to the floathome world..a "Coach House on the Water" Boatshed with 1200sf, 2 bed, den 2 bthrm plus 500sf roof deck. Moor your boat below and live above. This property offers enormous potential for a unique living space on the water in an urban, close to everything setting. It needs work to take it the next level. The marina is situated in the Lower Lonsdale area of N. Van. a few minutes walk to the SeaBus, Lonsdale Quay markets, restaurants, and entertainment. Outdoor recreation at your doorstep. No Foreign buyers, Speculation or Vacancy taxes applicable. Short and long term rentals, children and pets allowed. Tenant occupied. Minimum 48hrs notice required. Weekend viewings preferred.Please contact listing realtor for details on tenancy and moorage.
Provided by: Royal LePage WestsideAdditional Information
Property Location
Property Features
Washer Dryer Dishwasher Refrigerator Stove Oven Range Top

