7 533 E 3rd Street North Vancouver, BC
3 Bedroom Townhouse for Sale
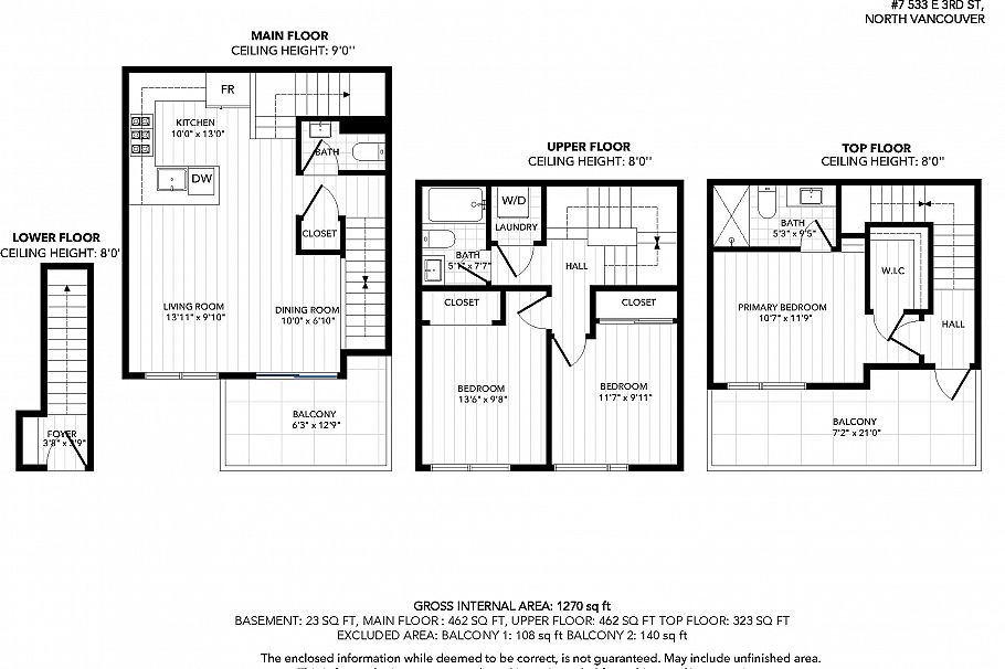
Stunning south-westerly VIEWS from the quiet side of Founders Block North by Anthem. This exceptional 3-bed, 3-bath townhome offers a functional layout paired with Scandinavian-inspired design and West Coast contemporary design. Thoughtfully upgraded throughout, including custom millwork, built-ins and added value of a second parking stall. Impressive top-floor balcony spanning full width of the home, delivers panoramic city views and of Burnaby, Mt. Baker and Stanley Park. Well-run strata with a strong sense of community. Gas and hot water included in fees. Unbeatable walkability: steps to the SeaBus, Shipyards District, breweries, shops and beloved Moodyville Park. An extraordinary opportunity to live in one of North Vancouver’s most vibrant and connected neighbourhoods.
Provided by: The Partners Real Estate
