3265 Chaucer Avenue North Vancouver, BC
4 Bedroom Single Family Residence for Sale
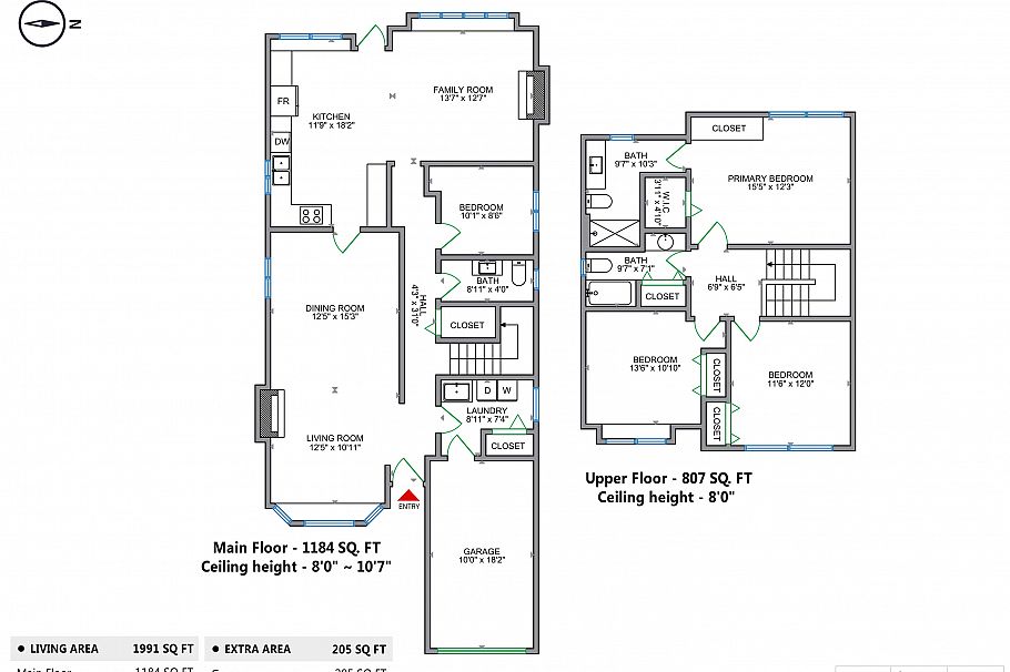
Very nice family home on a quiet street with mountain trails, Hunter Park and Hastings Creek starting at the end of the block. Street has low traffic, great for children, street is flat, lot is flat. House has lots of upgrades: upstairs carpets and bathrooms ( 2021 ), kitchen ( 2025 ), Roof ( 2022 ), new fence ( 2020 ), new furnace/heat pump ( 2025 ), blinds and refreshed paint. Rooms are all large and bright. Even though it is in a quite location bus line is close by and Lynn Shopping Center is within walking distance. In the Argyle Secondary School Catchment. Single garage access from the front with space on driveway for a second vehicle.
Provided by: Multiple Realty Ltd.Additional Information
Property Location
Property Features
Washer Dryer Dishwasher Refrigerator Stove

