405 680 Seylynn Crescent North Vancouver, BC
3 Bedroom Apartment/Condo for Sale
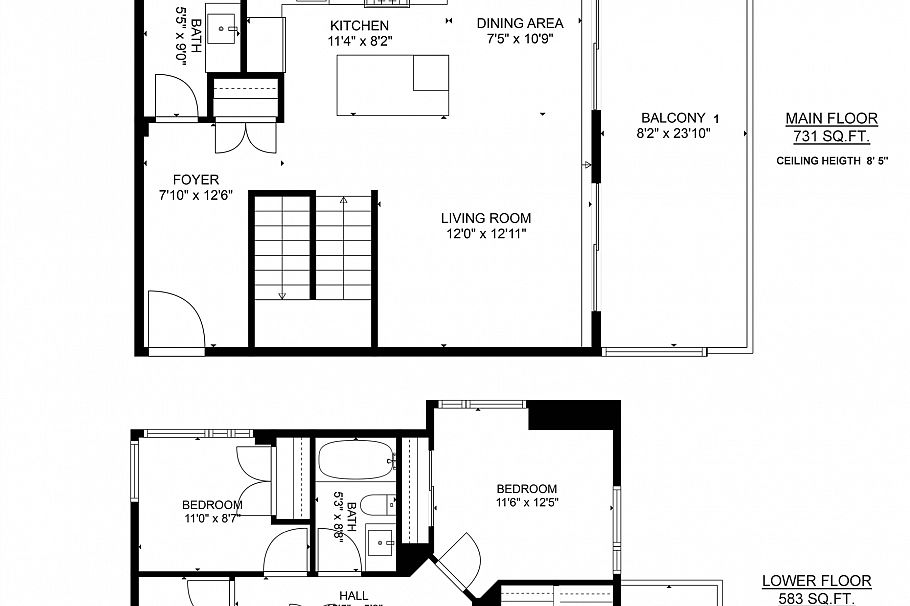
Welcome to Compass! This concrete 3 bedroom + den corner home lives like a townhome in the sky. It is set over two spacious stories with no overhead neighbours. The modern kitchen is equipped with premium Fisher Paykel & Bosch appliances with a generous sized south-facing balcony directly off of the living space. Downstairs you will find all 3 bedrooms and a den, great for an office or additional storage. This home includes air-conditioning with separate zones on each floor. Full access to the Denna club which includes an indoor pool, sauna/steam room, exercise room & full-time concierge. Includes storage & TWO parking. Pets welcome.
Provided by: RE/MAX Crest RealtyAdditional Information
Property Location
Property Features
Washer Dryer Dishwasher Refrigerator Stove

