111 747 E 3rd Street North Vancouver, BC
2 Bedroom Townhouse for Sale
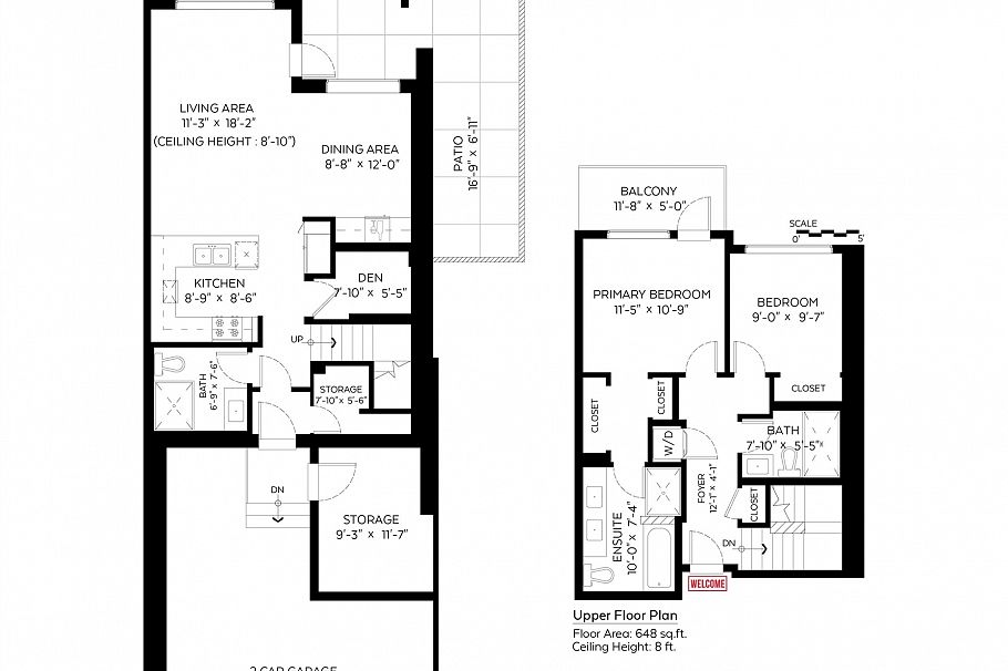
Southwest exposed end-unit townhome w/ 3 parking, including a 630 sq ft 2-car garage + storage/workshop in the LEED-certified Green on Queensbury. This 2-level, 1,414 sq ft home offers a bright, open layout w/ a modern kitchen ft: integrated appliances, gas cooktop, & quartz counters w/ island seating. The main includes a formal dining (convertible to 3rd bed) & flows to a 360 sq ft patio facing the park w/ gas, water & elec — ideal for entertaining. An den/flex, 3-pc bath, & mud rm w/ storage complete the main. Upstairs offers 2 beds & 2 full baths, including primary w/ walk-in closet, 5-piece ensuite, & covered balcony. The cherry on top is a gated 32ft long dbl garage, extra 3rd stall, w/ an attached workshop for bikes, tools, or gear. Steps to transit, spirit trail & Lower Lonsdale!
Provided by: Oakwyn Realty Ltd.
