828 Nicolum Court North Vancouver, BC
4 Bedroom Single Family Residence for Sale
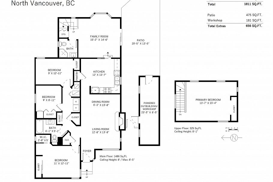
Roche Point delivers the kind of street people move for & never leave. Quiet cul-de-sac, kids playing hockey & basketball w/ neighbours, backyard summers––this is North Shore family life at its best. This rancher-style home offers rare single-level living w/ a versatile upper room that works as a bedroom, rec room, office or study. The sunny, private yard is perfect for playtime & evening BBQs, while the tall crawl space + powered detached workshop keeps all the gear organized. Major upgrades done: roof (2019), kitchen (2019), windows + patio door (2015), reno'd bath (2025), fresh paint (2025), newer LG appl. (2017–2025) & furnace (2011) fully serviced late 2025. Primary is roughed-in for an easy ensuite add. Mins to parks, Mt Seymour & Deep Cove. Watch the tour & Visit OPEN SUN 2-3PM
Provided by: Real BrokerAdditional Information
Property Location
Property Features
Washer Dryer Dishwasher Refrigerator Stove

