238 E 28th Street North Vancouver, BC
4 Bedroom Single Family Residence for Sale
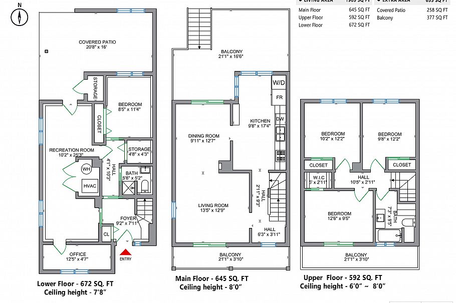
Substantially renovated with permits, this beautifully finished 3-level home offers approximately 1,909 sq. ft. of modern comfort in sought-after Upper Lonsdale. Major upgrades include plumbing, electrical, insulation, windows, siding, doors, & flooring, creating the feel of a nearly new home with quality craftsmanship throughout.The bright open-concept main floor features a stylish kitchen with quartz countertops, full-height cabinetry, gas range, & stainless steel appliances, perfect for everyday family living & entertaining. Contemporary bathrooms showcase glass-enclosed showers, a skylight, & elegant finishes. Enjoy rebuilt balconies with modern glass & metal railings, a terraced front yard with new retaining walls, pavers & lighting, plus a landscaped backyard with a spacious deck.
Provided by: Royal Pacific Realty Corp.
