2813 W 21st Avenue Vancouver, BC
6 Bedroom Single Family Residence for Sale
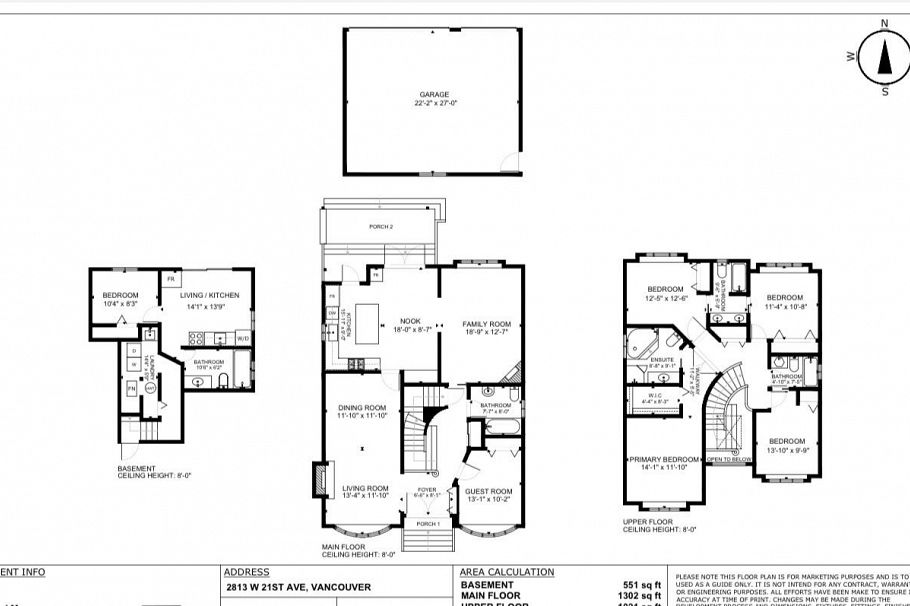
South exposure, bright, and quiet. Well kept over 2,930 sq ft of living space on a 4,883 sq ft lot with a 40 ft frontage. Features 6 bedrooms plus a den & 5 bathrooms. Includes a one-bedroom suite in the basement and a 500 sq ft crawl space for storage. The recent updates to the home include: Just freshly painted, new windows installed in 2020. Enjoy a nice 350 sq ft sundeck in the backyard and a triple-car garage. Two sets of laundry. Located in the school catchment for Carnarvon Elementary and Prince of Wales Secondary. Close to Carnarvon Park and nearby shops. Easy to show. Sun APRIL 12 open house from 2 to 3pm
Provided by: Royal Pacific Realty Corp.Additional Information
Property Location
Property Features
Washer Dryer Dishwasher Refrigerator Stove

