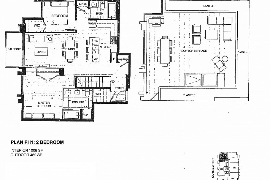
601 4240 Cambie Street Vancouver, BC
2 Bedroom Apartment/Condo for Sale
3 S/S parkings! Penthouse 601 @ Concrete Construction Savoy on Cambie @ 27th. This luxury 2-bedroom PH offers a very beautiful layout w/2 bdrms separated from each other, a private rooftop patio with views of panoramic view of north shore mountains & city. It features with central air conditioning, Miele appliance, over-height ceilings, motorized shades for all windows with remote and engineered hardwood flooring throughout. 1 storage locker. It offers the best of urban convenience and park side living, just steps to Skytrain Station, Q. E. Park and new Oakridge Centre. GST included.
Provided by: Sutton Group-West Coast RealtyAdditional Information
Property Location
Property Features
Washer Dryer Dishwasher Refrigerator Stove

