3303 1189 Melville Street Vancouver, BC
2 Bedroom Apartment/Condo for Sale
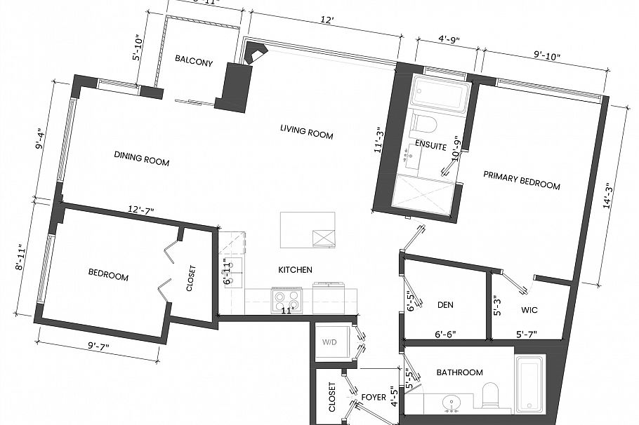
Amazing Coal Harbour living in the highly sought after building “The Melville”. This executive super well maintained 2 Bed/2 Bath upper floor corner unit offers over-height ceilings w/modern city & ocean views from the floor to ceilings windows & covered balcony. Large gourmet kitchen with tons of cabinets, stainless steel KitchenAid appliances with gas range & island with breakfast bar seating. Enjoy the convenience of an in-suite storage room & an additional underground storage. One of only a few residential towers in Vancouver with rooftop amenities, you will experience panoramic views from English Bay to Burrard Inlet, complete w/ fitness centre, sauna, outdoor swimming pool, jacuzzi, perfect for viewing the fireworks, sunsets, or observing all the activity & beauty of the city.
Provided by: The Agency VancouverAdditional Information
Property Location
Property Features
Washer Dryer Dishwasher Refrigerator Stove

