1755 Columbia Street Vancouver, BC
2 Bedroom Townhouse for Sale
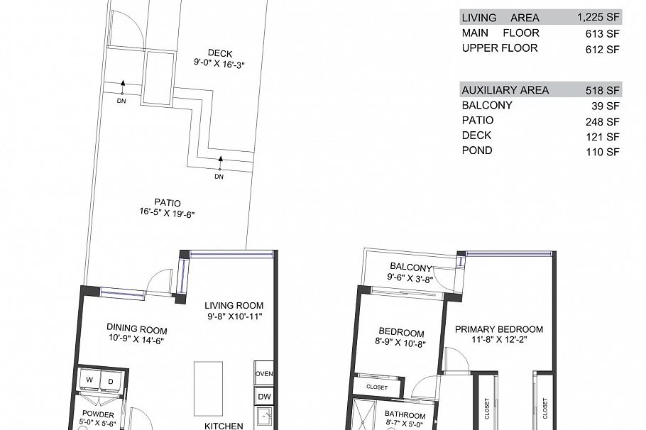
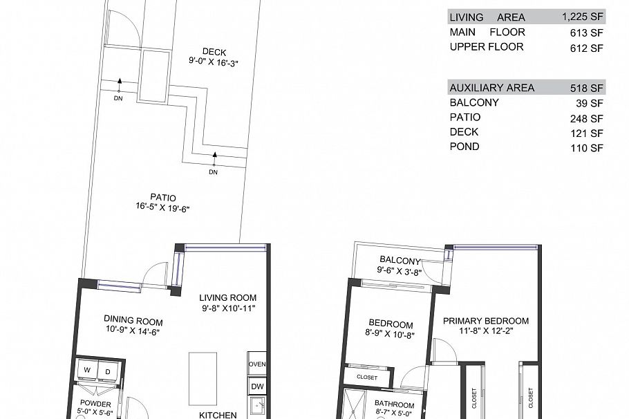
A BEAUTIFUL CITY HOME IN AN EXTRAORDINARY PARK LIKE SETTING! Walk or bike out of your own private entrance, through stunning landscaped gardens, over water features, across Hinge Park, past the off leash dog area, and straight onto the Seawall! At home, enjoy exceptional privacy and magnificent park/mountain views from both levels. The main living level is centred around a super social open kitchen (with full-size Miele wine fridge) and flows seamlessly out onto a 450 ft.² private patio for incredible indoor/outdoor living. 2 pc powder + multiple pantry/storage options. Up, both bedrooms have en suites including an opulent 5 piece primary + large dressing room. Rounding the offering out is EV parking, 24/7 Concierge, gym, party/meeting rooms, automated car wash + secure covered dog area.
Provided by: Stilhavn Real Estate ServicesAdditional Information
Property Location
Property Features
Washer Dryer Dishwasher Refrigerator Stove Wine Cooler

