1 2830 Musqueamview Street Vancouver, BC
3 Bedroom Half Duplex for Sale
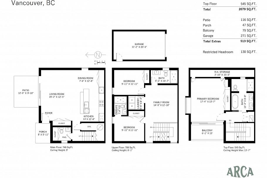
One of the most exquisite displays of duplex design the Westside has ever seen. Combining the vision of Juli Hodgson Interiors, the form of Sean Best Architecture, and build quality of Eyco Building Group, this home excludes sophistication and class at every turn. Offering over 2000sqft of net zero construction, an open 3 bedroom + rec room floor plan that seamlessly blends style with practicality, and finishing details that deliver an instant dose of zen. Oversized corner lot with lush private fenced yard. A/C and solar. Single car garage plus additional pad. Located in one of Kitsilano’s most desirable pockets, this home delivers a premier location with exceptional design. They just don’t make them like this anymore.
Provided by: Stilhavn Real Estate ServicesAdditional Information
Property Location
Property Features
Washer Dryer Dishwasher Refrigerator Stove Oven

