2582 W 6th Avenue Vancouver, BC
5 Bedroom Single Family Residence for Sale
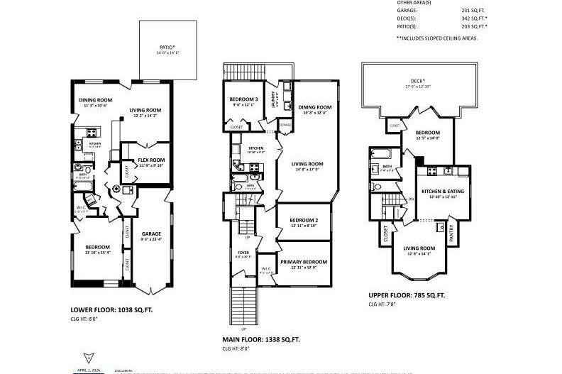
In the heart of Kitsilano, this cherished 1912 residence has been lovingly held by the same family for generations. Set on a rare 35' x 120' sun-filled property, it invites endless possibilities—restore its original charm, reimagine the space or build your dream home. Rich with character, the home is currently arranged as 3 separate living spaces across three levels, ideal for multi-generational living or easily converted back to single family living with a nanny suite. A bright south-facing backyard and sun-drenched deck add to its appeal. Just steps from beaches, boutiques, transit, and top schools, this is a wonderful opportunity to start your next chapter in one of Vancouver’s most sought-after neighbourhoods.
Provided by: RE/MAX Select PropertiesAdditional Information
Property Location
Property Features
Washer Dryer Dishwasher Refrigerator Stove

