3086 W 2nd Avenue Vancouver, BC
6 Bedroom Single Family Residence for Sale
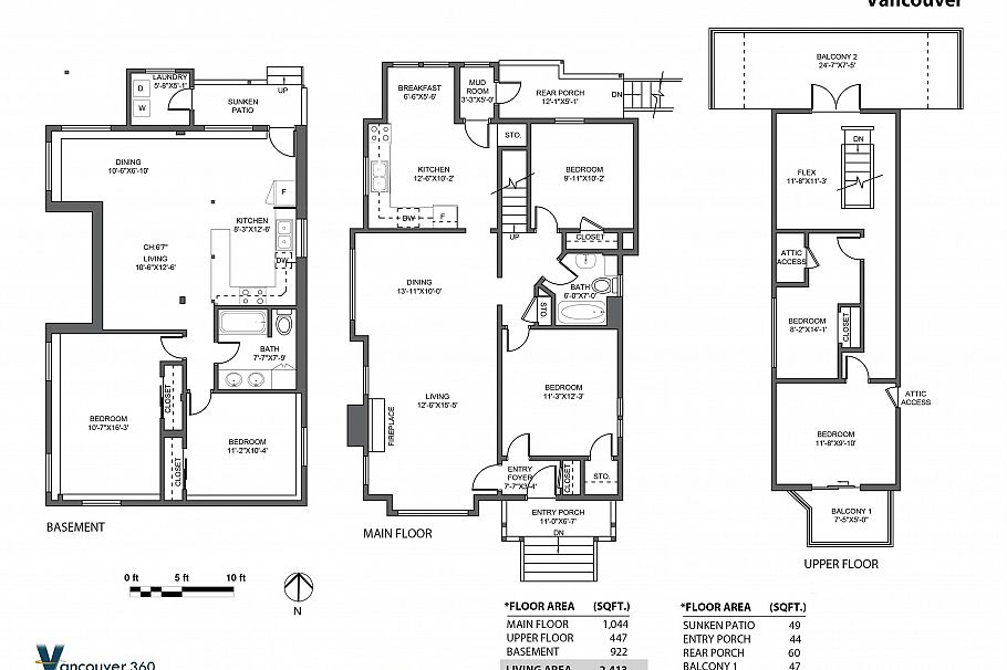
Prime North of 4th Kitsilano opportunity with flexibility to renovate, hold, or redevelop. Situated on a 40-ft RT-8 zoned lot, this property offers excellent redevelopment potential, including duplex possibilities (buyers to verify with City of Vancouver). RT-8 zoning allows for additional density incentives when pursuing net-zero or Passive House construction. Previous development permit has expired, though plans for an approx. 3,300 sq.ft. net-zero duplex may offer future inspiration. Potential to retain & renovate existing character home. Current home features a 4-bed main/upper suite & 2-bed garden suite generating $7,625/month total income. Sunny south-facing yard, mountain views, quiet traffic-calmed street, 2 blocks to beach access. Steps to shops, cafés, transit, UBC & downtown.
Provided by: Stilhavn Real Estate ServicesAdditional Information
Property Location
Property Features
Washer Dryer Dishwasher Refrigerator Stove

