2721 W 5th Avenue Vancouver, BC
3 Bedroom Half Duplex for Sale
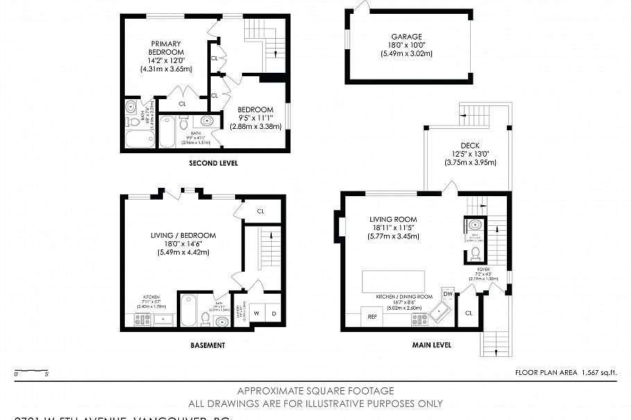
Welcome to the heart of Kits! This 1/2 duplex home features 3 beds, 4 baths, and 1,567 SF of stylish living, including a *STUDIO SUITE MORTGAGE HELPER or in-law option with *SEPARATE ENTRY*. This versatile space is a *RARE FIND* perfect for a rec room, rental suite, home office, or a private haven for teenagers. Enjoy a large open kitchen, perfect for entertaining, and a bright living space with in-floor radiant heat. Both upstairs bedrooms feature ensuite bathrooms. Relax on the covered deck with gas hookups for your BBQ and fire table, or unwind in the fenced backyard. Detached single garage plus a parking pad in front, tons of storage, and street parking. Just a 10-minute walk to the beach and close to transit and shopping. Quiet street—prime Kitsilano living! *BONUS New boiler in 2024
Provided by: Sutton Group-West Coast RealtyAdditional Information
Property Location
Property Features
Washer Dryer Dishwasher Refrigerator Stove Wine Cooler

