3242 W 3rd Avenue Vancouver, BC
3 Bedroom Half Duplex for Sale
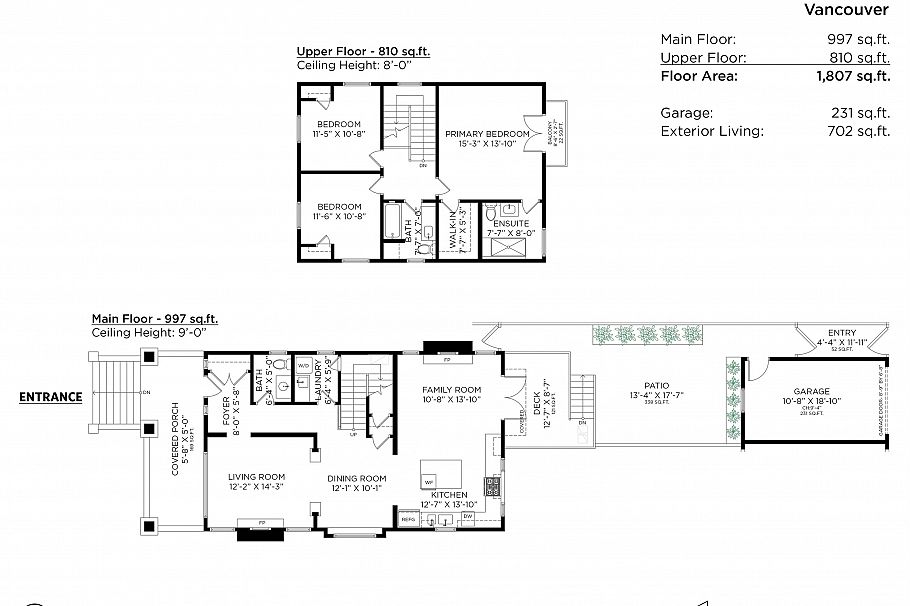
Designer half-duplex in Kitsilano, north of 4th and steps to beaches and the vibrancy of West Side amenities. An exceptional plan offering a full-width layout across both the primary and upper levels. Reimagined by Falken Reynolds Interiors, this residence blends scale, elevated design, and a premier location. Comprised of 3 bedrooms, 3 baths w/ multiple exposures, an inviting front veranda and a southern terrace adjacent to the family room. The custom kitchen features a large island, premium appliances, Hansgrohe fixtures, and indirect lighting. Additional features include two focal gas fireplaces, coffered ceilings, hardwood flooring, in-floor radiant heat, air conditioning, and a private garage—a rare opportunity to acquire a design-forward home in this highly sought-after location.
Provided by: Engel & Volkers Vancouver
