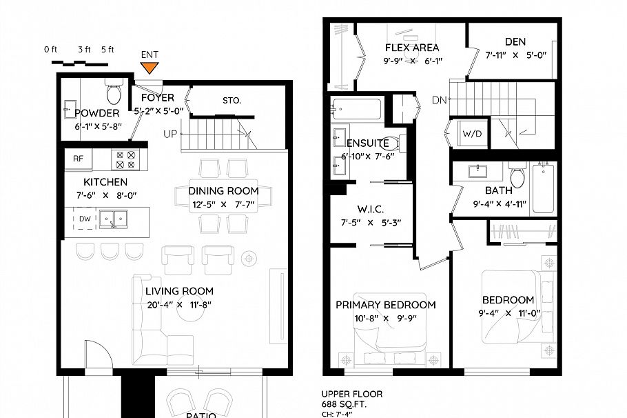
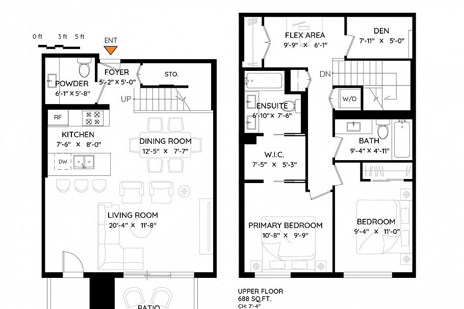
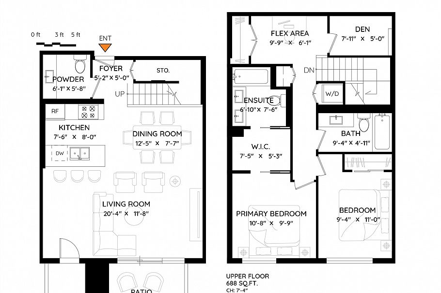
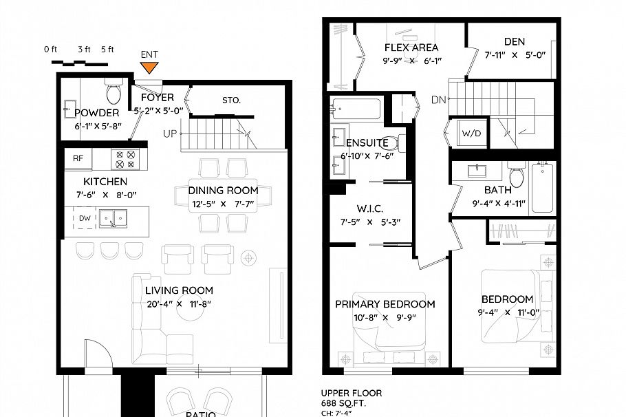
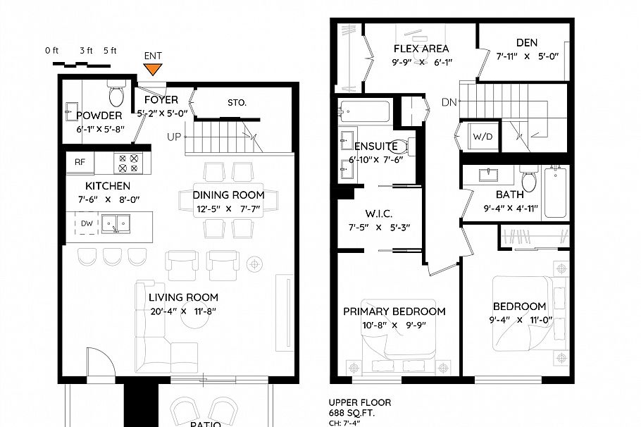
2063 W 10th Avenue Vancouver, BC
2 Bedroom Townhouse for Sale
Kitsilano 2+Den Concrete Townhouse w/AC. 1,254 on 2 floors w/extra high 11’ ceilings, accommodates house size furniture, full size appliances, gas cooking, ample storage & comfortable bedroom size. Heating, cooling, gas & gym included in maintenance fees. Quiet home facing Arbutus Greenway. Steps to the future skytrain, on bike routes, minutes to Kits Beach & all the amenities that makes this incredible community. Lord Tennyson & Montessori Daycare beside building. OPEN SAT MAR 28, 3.30 - 4.30 pm.
Provided by: RE/MAX Select PropertiesAdditional Information
MLS® Number: R3078192
Year Built: 2017
Property Type: Residential Attached
Taxes: $4,690
By-Law Restrictions: Cats OK, Dogs OK, Number Limit (Two), Yes
Maintenance Fees: $792
Maintenance Includes:
Property Location
Property Features
Washer Dryer Dishwasher Refrigerator Stove

