611 455 SW Marine Drive Vancouver, BC
1 Bedroom Apartment/Condo for Sale
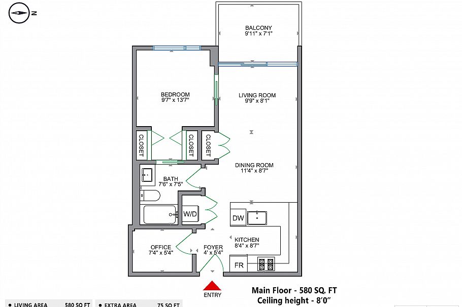
Welcome to W1 WEST by Concord Pacific. This bright west-facing one bedroom+den unit has it all! It is air-conditioned for year round comfort, offers a practical U-shaped kitchen equipped with Miele appliance package, plus a bathroom can be converted to ensuite at night for added convenience. High-end finishes including custom closet organizers, laminate flooring, marble bathroom tile, along with resort-style amenities such as concierge service, a fitness centre, party room and so much more. Centrally located, minutes walk to the Marine Drive skytrain station, T&T Supermarket, banks, shops, movies and restaurants. Minutes drive to Oakridge Centre, DT, Richmond, and airport. School catchment: Sexsmith Elementary and Churchill Secondary. Comes with one parking and one locker.
Provided by: Royal Pacific Realty Corp.Additional Information
Property Location
Property Features
Washer Dryer Dishwasher Refrigerator Microwave Oven

