535 W 62nd Avenue Vancouver, BC
5 Bedroom Single Family Residence for Sale
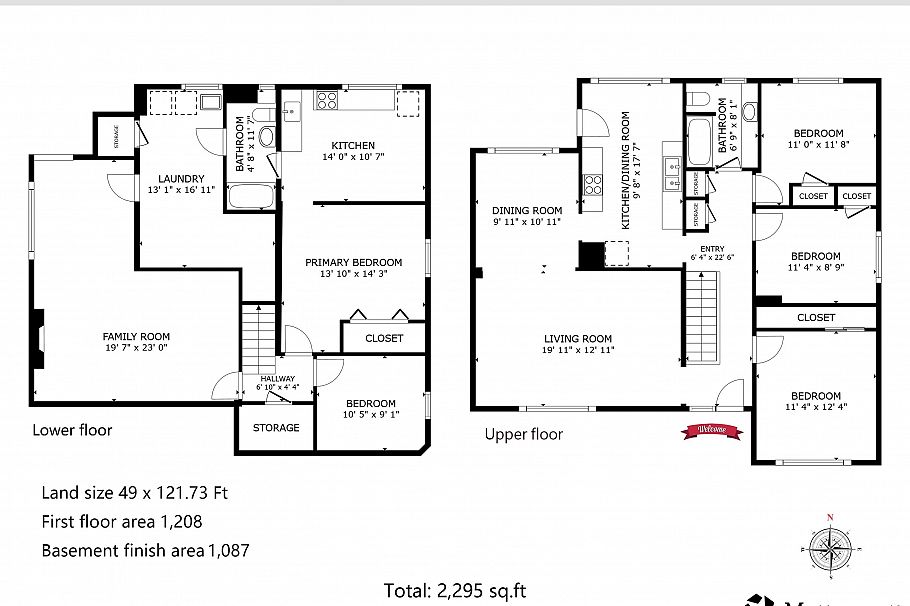
Facing south with abundant bright light, this well maintained & continuously updated solid house sits on a R1-1 zoned 6000.85 sf. level lot (49.29 x 121.73) on the high side of the quiet street in the desirable Marpole area & along Cambie Corridor w/ community plan for duplexes, multiplexes or hold for future land assembly. With 5 spacious bedrooms & 2 bathrooms, water tank (2025), furnace (2017), upper level laminate flooring (2018) & triple indoor garage, the functional layout is perfect for family living. Adding more value, the property features a self-contained rental suite with own kitchen and private entrance, an ideal mortgage helper or a flexible space for extended family. Easy access to the airport , Richmond and Downtown. Sir Winston Churchill Secondary School Catchment.
Provided by: Nu Stream Realty Inc.Additional Information
Property Location
Property Features
Washer Dryer Dishwasher Refrigerator Stove

