1248 Tecumseh Avenue Vancouver, BC
3 Bedroom Single Family Residence for Sale
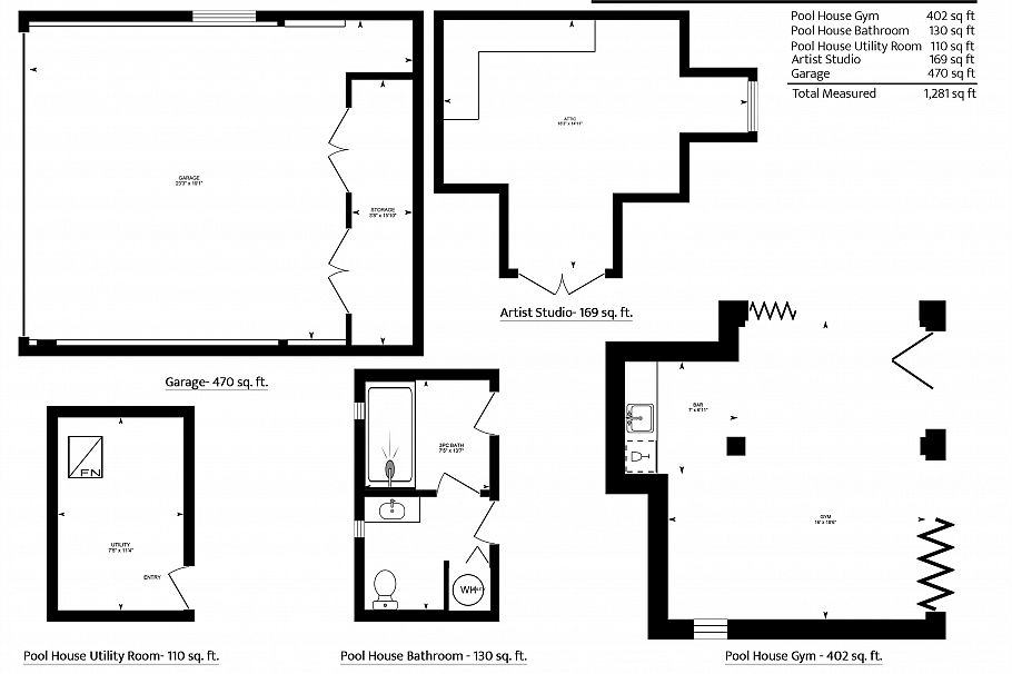
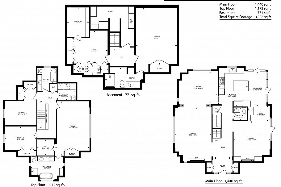
Incredible offering in First Shaughnessy! This elegant home sits on beautifully landscaped estate grounds designed for the best of outdoor living and entertaining. The private retreat features its own swimming pool, cabana, glass-enclosed gym, pool bath and shower, and generous outdoor gathering spaces. Inside are gracious principal rooms with garden outlooks, a well-appointed kitchen which opens seamlessly to the outdoor living areas, three bedrooms up including a serene primary suite with marble ensuite and w/in closet, and a lower level with space for guests, a rec-room, office, wine room and storage. Completing this unique property is a double garage with artist studio above, a perfect finishing touch to this truly special First Shaughnessy residence.
Provided by: Engel & Volkers VancouverAdditional Information
Property Location
Property Features
Washer Dryer Dishwasher Disposal Refrigerator Stove Microwave Oven

