LOT A 7225 Hudson Street Vancouver, BC
4 Bedroom Single Family Residence for Sale
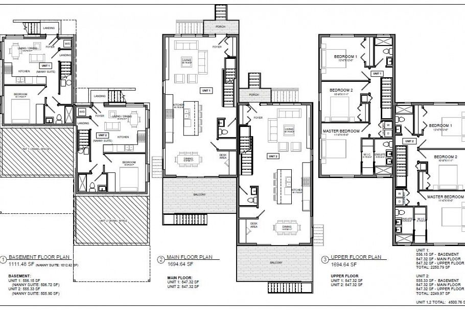
Attention developers! Lots for sale! Rare opportunity to build in South Granville, one of Vancouver's most sought-after neighborhood's. This level 50' x 118' (6,252 sq ft) lot at 7225 Hudson Street offers excellent development potential, allowing for a luxury duplex totaling up to 4,500 sq ft, complete with detached garages or your Dream Single Family Home! Ideally located near top-rated schools including Sir Winston Churchill Secondary and Magee Secondary, as well as parks, shopping, and convenient transit options. An exceptional chance to create a custom residence or investment property in a premier West Side location. Contact us for info package!!
Provided by: Grand Central RealtyAdditional Information
Property Location
Property Features
Washer Dryer Dishwasher Refrigerator Stove

